Alix du Halgouët vous accompagne sur tous vos projets de rénovation complète et/ou de décoration, en faisant appel à des partenaires de confiance (ingénieurs structure, entrepreneurs, électriciens, menuisiers, …). Exigence et agilité sont les fondamentaux de son travail.
L’agence accompagne ses clients dès les premières visites précédant l’achat d’un bien, pour tirer le meilleur parti de ses possibilités en tenant compte des contraintes techniques et budgétaires : circulation de la lumière, fluidité des déplacements, isolation phonique et thermique, plan électrique cohérent, économie d’énergie, optimisation de l’espace…
Chaque projet est conçu à partir des caractéristiques du lieu et du mode de vie et des goûts de chacun pour créer un univers esthétique au caractère singulier.
- Prise de contact et échanges sur vos besoins, votre budget et les contraintes de votre projet
- État des lieux (relevés, photos, réalisation du plan de l’existant, diagnostic)
2- Avant-Projet Sommaire (APS) : conception créative
- Proposition d’un concept créatif qui sera le fil rouge du projet
- Réalisation d’au moins 2 plans d’agencement en 2D
- Création de moodboards et planches d’ambiance (choix des matériaux et des éclairages)
- Perspectives 3D du plan d’aménagement choisi
3- Avant-Projet Définitif (APD) : conception détaillée du projet
- Réalisation des plans d’implantation définitifs cotés
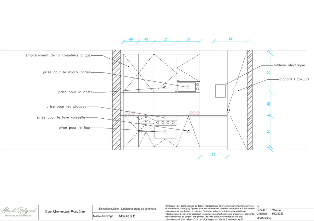
- Réalisation des plans techniques & élévations cuisine / salle de bain
- Réalisation des plans de menuiserie sur-mesure
- Listing fournitures (matériaux, fournitures, luminaires)
- Consultation des entreprises sur la base du projet choisi : descriptif travaux, appel d’offre (demande d’un ou plusieurs devis d’entreprise pour réaliser les travaux)
- Suivi de chantier (gestion de la relation avec l’entreprise de travaux, réunions hebdomadaires, compte-rendu)
- Veille permanente sur la qualité des travaux par les différents intervenants
- Suivi des corrections
- Réception du chantier et levée des réserves éventuelles
5- Décoration
- Sélection de revêtements, de mobiliers ou d’éléments décoratifs en harmonie avec le projet à partir d’une liste de besoins préalablement définie (papier peint, peinture, luminaires, tapis, canapé, rideaux, miroirs, tables, assises, bureau, …)
- Dessin de mobilier sur-mesure
Les tarifs de l’agence sont forfaitaires et calculés en fonction de la superficie et de la nature du projet.
